中工科技-过滤设备网首页 | 放到桌面 [会员登录]   会员服务 帮助中心
首 页 产品大全 采购信息 企业大全 品牌展示 资讯中心 企业样本 展会会议 服务项目
怎样在搜索中排名靠前! 材料数据库
热门关键字
活性炭过滤器
精密膜过滤器
隔膜压滤机
>> 点击申请关键字 找不到产品?点击此处快速发布求购,让您轻松找产品!
当前所在位置:首页 > 产品 > 过滤器 > 其他过滤器

不锈钢衬氟过滤器(HXCF1-FL)

不锈钢衬氟过滤器
供应商参考报价:面议
  供应商信息
· 杭州汇旭科技有限公司 [浙江省] 加为商业伙伴
  认证企业 发送站内消息
联系人: 刘海磊
所在城市: 浙江省 杭州市
详细地址: 浙江省杭州市拱墅区兴业街16号5号楼316室
联系我们 更多产品 进入商铺
  
详细信息  

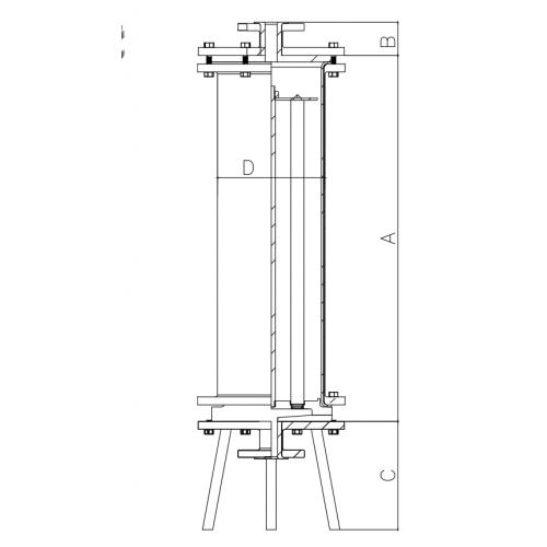
衬氟过滤器是在一些不锈钢过滤器不能耐受物料腐蚀而采用的一种加工工艺,采用四氟为衬里部件,内壁及滤芯均采用耐腐蚀性的聚丙烯或四氟制成,用来清除腐蚀性介质中的杂质,过滤器几乎在所有强酸,强碱,盐,强氧化剂和有机溶剂等介质中均能适用,因此该产品被广泛应用于各种腐蚀性管路中。

芯式内衬四氟过滤器,筒体一般采用不锈钢材质,内部喷涂氟或者衬氟,筒体所有与液体接触的部分经5-6次的喷氟工艺而成。过滤精度高,耐酸、碱等化学溶剂。用于各种悬浮物的固液分离,环境要求比较高的、过滤精度比较高的药液过滤、腐蚀性的化工液体过滤。

产品工艺

过滤器材质:不锈钢304、316L

高强度的吊环快开式开关

采用加厚的四氟滤芯固定板

与流体接触部分,加厚喷涂四氟

内部可喷涂:F40、F46、H30

密封圈:氟胶、四氟、包氟

支持多芯非标定制、来图来样定制

  产品优势 过滤器筒体采用加厚不锈钢,耐久度更高 与流体接触部分,5-6次喷氟工艺 抗酸碱、耐腐蚀 耐高温 耐久度高,使用寿命长

典型应用:

轻工食品、制药生产中有卫生要求的物料

 

石油化工生产中的弱腐蚀性物料

化工生产中的腐蚀性物料

制冷中的低温物料

 

 
  还没找到想要购买的产品吗?尝试免费发布求购信息,让供应商主动找上门!
  求购产品名: 热门供应: 干燥机 粉碎机 混合机
同类产品  

玻璃钢pp过滤

电子水处理器,

全自动过滤器

不锈钢微孔滤

德国凯士比KSB

保安过滤器

振荡式三合一
 
加入我们,让您马上开始做生意!
免费推广产品,免费宣传公司
查找买家信息,结交商业伙伴
想开展网上贸易,提升销量?
推荐您选择VIP会员
服务热线:0571-28990953
《中工科技-过滤设备网》客服热线:
0571-28990953
《中工科技-过滤设备网》客服QQ:
189990251
您可以给我们留言,寻求帮助。
我们会在一个工作日内给您回复!
会员服务推广服务帮助中心联系我们
中工科技-过滤设备网 版权所有1999-2025 浙ICP备07502667号-21
客服QQ:189990251  
客服电话:0571-28990953 
版权所有:杭州中工科技有限公司 法律顾问:京衡律师集团事务所

浙公网安备 33010602003211号